BRADENTON, FL / ACCESSWIRE / October 9, 2024 / Token Communities Group Executed L.O.I. to Acquire Paradise Island in Florida
Paradise Island in Florida
L.O.I. Executed to Acquire Paradise Island
ASC Global Inc. is a wholly-owned subsidiary of Token Communities ( OTC Pink / Stock Symbol:TKCM ) has entered into and executed a L.O.I. ( Letter of Intent ) with American Software Capital today, with the intention to acquire Paradise Island located in Arcadia, Florida.
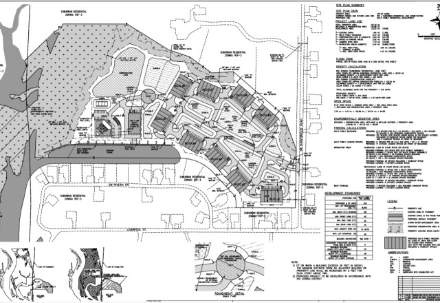
According to Ms. Xiangru Lin ( A.K.A Ruby Lin ) who is a Director of the Board of ASC Global, " Paradise Island is a 165 acres premium waterfront property located on Peace River in DeSoto County which is about 7 miles away from Charlotte Harbor and Gulf of Mexico. The entire property is consisted of two large islands and a peninsula ( upland ) with road access from Sunnybreeze Road, it is conveniently located between Sarasota County, Charlotte County and DeSoto County, Highway SR-17 is only about 1.2 miles on the east, which it leads to Interstate I-75. The entire project is planned to be developed in three phases, Phase One ( 24 acres ) will be a 110 units of Townhouses development with community pool, restaurant, retail commercial and others.
According to Mr. David Chen who is the President and Chairman of American Software Capital, " Paradise Island is a fine gem in the Southwest Florida, it is right adjacent to the local Paradise Golf Course, Liverpool State Park and among many new developments, such as Southern Sands, Cross Creek and others. Paradise Island ( formerly known as Heather Island ) can be easily accessible from exit 164 and exit 170 of Interstate I-75, and it is just minutes away from Punta Gorda, Port Charlotte, Fort Myers, Cape Coral, Venice, North Port, Sarasota and Naples. As this entire SW Florida area has been growing and booming rapidly, we believe this project will have a very bright future. "
Forward-Looking Statements
Certain information set forth in this presentation contains "forward-looking information", including "future-oriented financial information" and "financial outlook", under applicable securities laws (collectively referred to herein as forward-looking statements). Except for statements of historical fact, the information contained herein constitutes forward-looking statements and includes, but is not limited to, the (i) projected financial performance of the Company; (ii) completion of, and the use of proceeds from, the sale of the shares being offered hereunder; (iii) the expected development of the Company's business, projects, and joint ventures; (iv) execution of the Company's vision and growth strategy, including with respect to future M&A activity and global growth; (v) sources and availability of third-party financing for the Company's projects; (vi) completion of the Company's projects that are currently underway, in development or otherwise under consideration; (vi) renewal of the Company's current customer, supplier and other material agreements; and (vii) future liquidity, working capital, and capital requirements. Forward-looking statements are provided to allow potential investors the opportunity to understand management's beliefs and opinions in respect of the future so that they may use such beliefs and opinions as one factor in evaluating an investment.
These statements are not guarantees of future performance and undue reliance should not be placed on them. Such forward-looking statements necessarily involve known and unknown risks and uncertainties, which may cause actual performance and financial results in future periods to differ materially from any projections of future performance or result expressed or implied by such forward-looking statements.
Although forward-looking statements contained in this presentation are based upon what management of the Company believes are reasonable assumptions, there can be no assurance that forward-looking statements will prove to be accurate, as actual results and future events could differ materially from those anticipated in such statements. The Company undertakes no obligation to update forward-looking statements if circumstances or management's estimates or opinions should change except as required by applicable securities laws. The reader is cautioned not to place undue reliance on forward-looking statements.
Contact Information
David Chen
President
davechen.global@gmail.com
+1 0016313971111
Related Files
Related Images
|
SOURCE: Token Communities Ltd.
View the original press release on accesswire.com


